サンシティ戸坂千足
物件番号:TO00042246
掲載内容につきましては、新築分譲当時などの情報をベースに当社で調査したものであり、現況と異なる場合があります。
◇掲載している情報には、新築分譲当時の内容が含まれてる場合があります。
◇掲載している会社は、社名変更をしている場合があります。
◇建物竣工時に撮影した写真を掲載している場合があります。
- 新着情報(2026年01月15日更新)
- サンシティ戸坂千足の売り出し中物件が2件あります。価格 1,980万円~2,598万円 詳細はこちら
-
広島県広島市東区戸坂千足2丁目9-14
-
- 芸備線 戸坂駅 徒歩7分
-
◇不動産の表示に関する公正競争規約の改正(2022年9月1日施行)により、交通利便情報が販売中の物件と異なる場合がございます。
サンシティ戸坂千足の物件概要
-
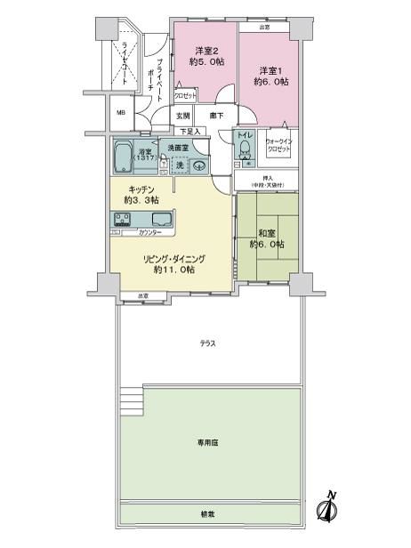
- 間取り
- -
-
- 専有面積
- -
-
- 建物階数
- 地上9階
-
- 総戸数
- 65戸
-
- 施工年月
- 2000年5月築
-
- 事業主
- -
-
- 施工会社
- -
-
- 構造
- 鉄筋コンクリート
サンシティ戸坂千足の環境・設備
◇売り出し中物件(物件番号:MHF86668)の環境・設備を一例として表示しています。
物件毎の環境・設備については売り出し中の物件ページをご確認ください。
- エレベーター
- 宅配ボックス
- キッズルーム
- オートロック
- 防犯カメラ
- 平坦地
- 敷地内遊び場
このマンションを購入検討の方へ
サンシティ戸坂千足で売り出し中の物件
-

-
- 価格
- 2,598万円
-
- 間取り
- 3LDK
-
- 専有面積
- 69.93m2
-
- 所在階
- 地上9階建て1階部分
物件番号:MHF86668
売り出し中の物件を詳しく見る
-
-

-
- 価格
- 1,980万円
-
- 間取り
- 3LDK
-
- 専有面積
- 69.76m2
-
- 所在階
- 地上9階建て1階部分
物件番号:MHF87872
売り出し中の物件を詳しく見る
-
ご希望の売り出し中物件が見つからない方は、お知らせ予約をしていただくと、
新着の売り出し物件が出た際にお知らせメールを送信させていただきます。
周辺エリアの相場情報
サンシティ戸坂千足の売買価格推移
- 青線=サンシティ戸坂千足の売買相場
- 紫線=広島市東区の売買相場
- 赤線=戸坂千足の売買相場
◇面積を変更すると、面積別の相場が確認できます。
- ◇上記売買推移情報については、マンション情報サイト「マンションレビュー」より情報提供を受けております。過去の売り出し情報をもとに算出した情報であり
実際の価格を保証するものではございません。また、本情報に際し大京穴吹不動産は一切の責任を負いません。
周辺エリアの相場情報
サンシティ戸坂千足の売買価格履歴
| 所在階 | 参考販売価格 | 専有面積 バルコニー面積 |
間取り 向き |
㎡単価 坪単価 |
販売年月 |
|---|---|---|---|---|---|
| 1階 | 2,598万円 | 69.93㎡ 不明㎡ |
3LDK 南東 |
37万円 122.81万円 |
2026年1月 |
| 4階 | 1,880万円 | 67.07㎡ 12.44㎡ |
2SLDK 南 |
28万円 92.66万円 |
2026年1月 |
- ◇上記売買価格履歴情報については、マンション情報サイト「マンションレビュー」より情報提供を受けております。過去の売り出し情報をもとに算出した情報であり
実際の価格を保証するものではございません。また、本情報に際し大京穴吹不動産は一切の責任を負いません。
サンシティ戸坂千足のオーナーさまへ
マンション売却のプロが詳細な売却査定価格・周辺売出事例などをご案内いたします。
- 総合ご案内窓口 売買専用ダイヤル
-
0120-988-264
受付時間:10:00AM~6:30PM
無料売却査定
年中無休(年末年始を除く)
このマンションを賃貸検討の方へ
サンシティ戸坂千足で賃貸募集中の物件
ご希望条件に合う物件をご紹介いたします。
下記の場合において、掲載内容と現況が異なる可能性がありますのでご注意ください。
- ◇掲載している情報には、新築分譲当時の内容が含まれる場合があります。
- ◇掲載している会社は、社名変更をしている場合があります。
- ◇建物竣工時に撮影した写真を掲載している場合があります。
サンシティ戸坂千足のオーナーさまへ
マンション賃貸管理のプロが詳細な賃料査定価格・周辺売出事例などをご案内いたします。
- 総合ご案内窓口 賃貸専用ダイヤル
-
0120-222-251
受付時間:10:00AM~6:30PM
無料賃料査定
定休日:水曜日・年末年始
- 01 集客力
- 02 管理力
- 03 サポート力
詳しくはこちら
サンシティ戸坂千足の周辺地図
サンシティ戸坂千足のよくある質問
-
- Q. サンシティ戸坂千足に売り出し物件が出たら教えて欲しい
-
A.
当ページの「売り出しのお知らせ予約」機能をご利用ください。売り出しがあった場合にお知らせいたします。
-
- Q. サンシティ戸坂千足の売却査定価格を知りたい
-
A.
サンシティ戸坂千足の売却査定は無料査定サービスをご利用ください。
-
- Q. サンシティ戸坂千足の購入・売却・賃貸について問い合わせをしたい
-
A.
購入・売却・賃貸に関するお問い合わせは、フリーコールまたは各種お問い合わせフォームよりお問い合わせください。
- サンシティ戸坂千足の周辺の売り出し中物件一覧
サンシティ戸坂千足の周辺のマンション
-

- アーバンビュー戸坂アールグラン
-
広島県広島市東区戸坂出江2丁目3-24
-

- ヴェルディ戸坂ガーデンフィールズ
-
広島県広島市東区戸坂山根2丁目1-32
-

- ダイアパレス戸坂新町
-
広島県広島市東区戸坂新町2丁目44-2
-
NO PHOTO
- フローレンス戸坂中町
-
広島県広島市東区戸坂中町2-4
-
NO PHOTO
- リーデンススクエア戸坂出江プライマルコート
-
広島県広島市東区戸坂出江2丁目5-18
-
NO PHOTO
- ネオライフ戸坂
-
広島県広島市東区戸坂惣田2丁目4-2
-
NO PHOTO
- ロイヤルシティパーク戸坂
-
広島県広島市東区戸坂山崎町4-50
-
NO PHOTO
- ルミエール戸坂
-
広島県広島市東区戸坂千足1丁目8-23
-
NO PHOTO
- ヴェルディ戸坂弐番館
-
広島県広島市東区戸坂千足1丁目2-20
-
NO PHOTO
- ペルル戸坂
-
広島県広島市東区戸坂山根2丁目2-35
築年数・総戸数が近いマンション
- 同じエリア・同じ沿線のマンション一覧から探す
- 周辺エリアのマンション一覧から探す
- 総合ご案内窓口 売買専用ダイヤル
-
0120-988-264
受付時間:10:00AM~6:30PM
年中無休(年末年始を除く)
- 総合ご案内窓口 賃貸専用ダイヤル
-
0120-222-251
受付時間:10:00AM~6:30PM
賃料査定のご相談
定休日:水曜日・年末年始
