ライオンズマンション草加駅前
物件番号:TO00059707
大京・穴吹工務店等 分譲
掲載内容につきましては、新築分譲当時などの情報をベースに当社で調査したものであり、現況と異なる場合があります。
◇掲載している情報には、新築分譲当時の内容が含まれてる場合があります。
◇掲載している会社は、社名変更をしている場合があります。
◇建物竣工時に撮影した写真を掲載している場合があります。
-
埼玉県草加市高砂2丁目18番26号
-
- 東武伊勢崎・大師線 草加駅 徒歩3分
-
◇不動産の表示に関する公正競争規約の改正(2022年9月1日施行)により、交通利便情報が販売中の物件と異なる場合がございます。
ライオンズマンション草加駅前の物件概要
-
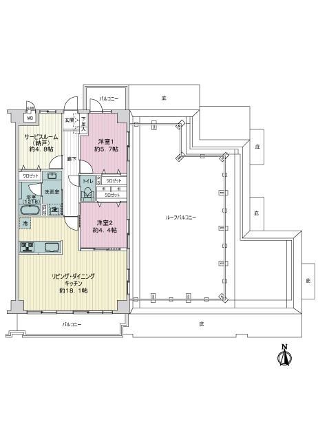
- 間取り
- 2LDK+S~4LDK
-
- 専有面積
- 62.37m2 ~ 80.89m2
-
- 建物階数
- 地上13階
-
- 総戸数
- 84戸
-
- 施工年月
- 1999年7月築
-
- 事業主
- 株式会社大京
-
- 施工会社
- 埼玉建興株式会社
-
- 構造
- 鉄骨鉄筋コンクリート
このマンションを購入検討の方へ
ライオンズマンション草加駅前で売り出し中の物件
ご希望の売り出し中物件が見つからない方は、お知らせ予約をしていただくと、
新着の売り出し物件が出た際にお知らせメールを送信させていただきます。
周辺エリアの相場情報
ライオンズマンション草加駅前の売買価格推移
- 青線=ライオンズマンション草加駅前の売買相場
- 紫線=草加市の売買相場
- 赤線=高砂の売買相場
◇面積を変更すると、面積別の相場が確認できます。
- ◇上記売買推移情報については、マンション情報サイト「マンションレビュー」より情報提供を受けております。過去の売り出し情報をもとに算出した情報であり
実際の価格を保証するものではございません。また、本情報に際し大京穴吹不動産は一切の責任を負いません。
周辺エリアの相場情報
ライオンズマンション草加駅前の売買価格履歴
| 所在階 | 参考販売価格 | 専有面積 バルコニー面積 |
間取り 向き |
㎡単価 坪単価 |
販売年月 |
|---|---|---|---|---|---|
| 9階 | 4,880万円 | 66㎡ 15.39㎡ |
2SLDK 南 |
74万円 244.43万円 |
2025年12月 |
| 9階 | 4,880万円 | 66㎡ 15.39㎡ |
2SLDK 南 |
74万円 244.43万円 |
2025年11月 |
- ◇上記売買価格履歴情報については、マンション情報サイト「マンションレビュー」より情報提供を受けております。過去の売り出し情報をもとに算出した情報であり
実際の価格を保証するものではございません。また、本情報に際し大京穴吹不動産は一切の責任を負いません。
ライオンズマンション草加駅前のオーナーさまへ
マンション売却のプロが詳細な売却査定価格・周辺売出事例などをご案内いたします。
- 総合ご案内窓口 売買専用ダイヤル
-
0120-988-264
受付時間:10:00AM~6:30PM
無料売却査定
年中無休(年末年始を除く)
このマンションを賃貸検討の方へ
ライオンズマンション草加駅前で賃貸募集中の物件
ご希望条件に合う物件をご紹介いたします。
下記の場合において、掲載内容と現況が異なる可能性がありますのでご注意ください。
- ◇掲載している情報には、新築分譲当時の内容が含まれる場合があります。
- ◇掲載している会社は、社名変更をしている場合があります。
- ◇建物竣工時に撮影した写真を掲載している場合があります。
ライオンズマンション草加駅前の賃料推移
- 青線=ライオンズマンション草加駅前の賃料相場
- 紫線=草加市の賃料相場
- 赤線=高砂の賃料相場
◇面積を変更すると、面積別の相場が確認できます。
- ◇上記賃料推移情報については、マンション情報サイト「マンションレビュー」より情報提供を受けております。過去の賃貸募集情報をもとに算出した情報であり
実際の賃料を保証するものではございません。また、本情報に際し大京穴吹不動産は一切の責任を負いません。
ライオンズマンション草加駅前のオーナーさまへ
マンション賃貸管理のプロが詳細な賃料査定価格・周辺売出事例などをご案内いたします。
- 総合ご案内窓口 賃貸専用ダイヤル
-
0120-222-251
受付時間:10:00AM~6:30PM
無料賃料査定
定休日:水曜日・年末年始
- 01 集客力
- 02 管理力
- 03 サポート力
詳しくはこちら
ライオンズマンション草加駅前の周辺地図
ライオンズマンション草加駅前のよくある質問
-
- Q. ライオンズマンション草加駅前に売り出し物件が出たら教えて欲しい
-
A.
当ページの「売り出しのお知らせ予約」機能をご利用ください。売り出しがあった場合にお知らせいたします。
-
- Q. ライオンズマンション草加駅前の売却査定価格を知りたい
-
A.
ライオンズマンション草加駅前の売却査定は無料査定サービスをご利用ください。
-
- Q. ライオンズマンション草加駅前の購入・売却・賃貸について問い合わせをしたい
-
A.
購入・売却・賃貸に関するお問い合わせは、フリーコールまたは各種お問い合わせフォームよりお問い合わせください。
- ライオンズマンション草加駅前の周辺の売り出し中物件一覧
ライオンズマンション草加駅前の周辺のマンション
-
NO PHOTO
- シティハウス草加
-
埼玉県草加市高砂2丁目1-2
-
NO PHOTO
- 草加サンハイツ
-
埼玉県草加市手代町169番地2
-
NO PHOTO
- ワコーレ草加
-
埼玉県草加市西町747-6
-
- レーベンリヴァーレ草加レイール
-
埼玉県草加市神明1丁目1番18号
-
NO PHOTO
- 藤和草加ハイタウン
-
埼玉県草加市苗塚町363-1
-

- ライオンズマンション草加駅西
-
埼玉県草加市氷川町2140-8
-
NO PHOTO
- レーベンハイム草加サザンコート
-
埼玉県草加市吉町2丁目5番12
-
NO PHOTO
- カルム草加参番館
-
埼玉県草加市高砂2丁目17-12
-

- レクセルマンション松原団地第2
-
埼玉県草加市松江3丁目1-39
-
NO PHOTO
- メロディーハイム草加
-
埼玉県八潮市大字南後谷719-3
ライオンズマンション草加駅前周辺の「ライオンズマンション」ブランドマンション
-
NO PHOTO
- ライオンズマンション草加松原
-
埼玉県草加市栄町2丁目1-40
-
NO PHOTO
- ライオンズマンション谷塚第2
-
埼玉県草加市瀬崎2丁目35-1
-
- ■売り出し中の物件
- 1件
- 価格
- 1,990万円
-

- ライオンズマンション草加高砂
-
埼玉県草加市高砂1丁目9-10
-
NO PHOTO
- ライオンズマンション谷塚仲町
-
埼玉県草加市谷塚仲町341-2
-

- ライオンズマンション草加旭町第2
-
埼玉県草加市旭町2丁目5-28
-
NO PHOTO
- ライオンズマンション谷塚
-
埼玉県草加市谷塚1丁目26-17
-

- ライオンズマンション谷塚駅前
-
埼玉県草加市谷塚1丁目2-45
-

- ライオンズマンション草加西町
-
埼玉県草加市西町1333番地1
-

- ライオンズマンション草加氷川町
-
埼玉県草加市氷川町830番地1
-

- ライオンズマンション草加旭町第3
-
埼玉県草加市旭町2丁目5-30
築年数・総戸数が近いマンション
-
NO PHOTO
- クレアール草加
-
埼玉県草加市瀬崎4丁目1-51
-

- ライオンズガーデン草加松原
-
埼玉県草加市草加4丁目3番23号
-

- ライオンズマンション草加高砂
-
埼玉県草加市高砂1丁目9-10
-
NO PHOTO
- メゾン草加松原
-
埼玉県草加市花栗3丁目23-41
-
NO PHOTO
- クレール松原
-
埼玉県草加市栄町2丁目8-30
-
NO PHOTO
- ライフピア草加松原ステーションプラザ
-
埼玉県草加市栄町2丁目21-3
-
NO PHOTO
- オーベル越谷南
-
埼玉県越谷市蒲生愛宕町8-39
-

- レクセルガーデン谷塚
-
埼玉県草加市吉町3丁目6番46号
-

- レクセルプラザ松原団地
-
埼玉県草加市栄町2丁目8-16
-
- ■売り出し中の物件
- 1件
- 価格
- 2,780万円
-
NO PHOTO
- ダイアパレス竹ノ塚Ⅱ
-
東京都足立区西保木間3丁目16番18号
- 同じエリア・同じ沿線のマンション一覧から探す
- 総合ご案内窓口 売買専用ダイヤル
-
0120-988-264
受付時間:10:00AM~6:30PM
年中無休(年末年始を除く)
- 総合ご案内窓口 賃貸専用ダイヤル
-
0120-222-251
受付時間:10:00AM~6:30PM
賃料査定のご相談
定休日:水曜日・年末年始











