江古田第4ローヤルコーポ
物件番号:TO00064033
掲載内容につきましては、新築分譲当時などの情報をベースに当社で調査したものであり、現況と異なる場合があります。
◇掲載している情報には、新築分譲当時の内容が含まれてる場合があります。
◇掲載している会社は、社名変更をしている場合があります。
◇建物竣工時に撮影した写真を掲載している場合があります。
NO PHOTO
-
東京都板橋区小茂根1丁目27-16
-
- 東京メトロ有楽町線 小竹向原駅 徒歩3分
-
◇不動産の表示に関する公正競争規約の改正(2022年9月1日施行)により、交通利便情報が販売中の物件と異なる場合がございます。
江古田第4ローヤルコーポの物件概要
-
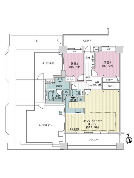
- 間取り
- -
-
- 専有面積
- 50.47m2 ~ 67.22m2
-
- 建物階数
- 地上5階
-
- 総戸数
- 22戸
-
- 施工年月
- 1979年5月築
-
- 事業主
- 藤沢建設
-
- 施工会社
- -
-
- 構造
- -
このマンションを購入検討の方へ
江古田第4ローヤルコーポで売り出し中の物件
ご希望の売り出し中物件が見つからない方は、お知らせ予約をしていただくと、
新着の売り出し物件が出た際にお知らせメールを送信させていただきます。
周辺エリアの相場情報
江古田第4ローヤルコーポの売買価格推移
- 青線=江古田第4ローヤルコーポの売買相場
- 紫線=板橋区の売買相場
- 赤線=小茂根の売買相場
◇面積を変更すると、面積別の相場が確認できます。
- ◇上記売買推移情報については、マンション情報サイト「マンションレビュー」より情報提供を受けております。過去の売り出し情報をもとに算出した情報であり
実際の価格を保証するものではございません。また、本情報に際し大京穴吹不動産は一切の責任を負いません。
周辺エリアの相場情報
江古田第4ローヤルコーポの売買価格履歴
| 所在階 | 参考販売価格 | 専有面積 バルコニー面積 |
間取り 向き |
㎡単価 坪単価 |
販売年月 |
|---|---|---|---|---|---|
| 4階 | 3,399万円 | 50.47㎡ 8.96㎡ |
2LDK 東 |
67万円 222.63万円 |
2022年8月 |
| 4階 | 3,499万円 | 50.47㎡ 不明㎡ |
2LDK 東 |
69万円 229.18万円 |
2022年5月 |
- ◇上記売買価格履歴情報については、マンション情報サイト「マンションレビュー」より情報提供を受けております。過去の売り出し情報をもとに算出した情報であり
実際の価格を保証するものではございません。また、本情報に際し大京穴吹不動産は一切の責任を負いません。
このマンションを賃貸検討の方へ
江古田第4ローヤルコーポで賃貸募集中の物件
ご希望条件に合う物件をご紹介いたします。
下記の場合において、掲載内容と現況が異なる可能性がありますのでご注意ください。
- ◇掲載している情報には、新築分譲当時の内容が含まれる場合があります。
- ◇掲載している会社は、社名変更をしている場合があります。
- ◇建物竣工時に撮影した写真を掲載している場合があります。
江古田第4ローヤルコーポの賃料推移
- 青線=江古田第4ローヤルコーポの賃料相場
- 紫線=板橋区の賃料相場
- 赤線=小茂根の賃料相場
◇面積を変更すると、面積別の相場が確認できます。
- ◇上記賃料推移情報については、マンション情報サイト「マンションレビュー」より情報提供を受けております。過去の賃貸募集情報をもとに算出した情報であり
実際の賃料を保証するものではございません。また、本情報に際し大京穴吹不動産は一切の責任を負いません。
江古田第4ローヤルコーポのオーナーさまへ
マンション賃貸管理のプロが詳細な賃料査定価格・周辺売出事例などをご案内いたします。
- 総合ご案内窓口 賃貸専用ダイヤル
-
0120-222-251
受付時間:10:00AM~6:30PM
無料賃料査定
定休日:水曜日・年末年始
- 01 集客力
- 02 管理力
- 03 サポート力
詳しくはこちら
江古田第4ローヤルコーポの周辺地図
江古田第4ローヤルコーポのよくある質問
-
- Q. 江古田第4ローヤルコーポに売り出し物件が出たら教えて欲しい
-
A.
当ページの「売り出しのお知らせ予約」機能をご利用ください。売り出しがあった場合にお知らせいたします。
-
- Q. 江古田第4ローヤルコーポの売却査定価格を知りたい
-
A.
江古田第4ローヤルコーポの売却査定は無料査定サービスをご利用ください。
-
- Q. 江古田第4ローヤルコーポの購入・売却・賃貸について問い合わせをしたい
-
A.
購入・売却・賃貸に関するお問い合わせは、フリーコールまたは各種お問い合わせフォームよりお問い合わせください。
- 江古田第4ローヤルコーポの周辺の売り出し中物件一覧
江古田第4ローヤルコーポの周辺のマンション
-

- 練馬小竹ヒルズ
-
東京都練馬区小竹町1丁目19-9
-
- 三協小竹向原駅前ハイツ
-
東京都板橋区小茂根1丁目3-17
-
- キャッスルマンション千早町
-
東京都豊島区千早4丁目27-10
-
- ヴィルヌーブ氷川台
-
東京都練馬区羽沢2丁目23-23
-
NO PHOTO
- 江古田パークマンション
-
東京都練馬区旭丘2丁目41番2号
-

- オープンレジデンシャル小竹向原
-
東京都板橋区小茂根2丁目24-3
-

- レクセルガーデン小竹向原
-
東京都板橋区大谷口2丁目58-3
-

- ライオンズマンション小竹向原
-
東京都板橋区小茂根2丁目13-5
-
NO PHOTO
- クレヴィア小竹向原
-
東京都練馬区小竹町2丁目1-1
-

- プラウドシティ小竹向原グランドコート
-
東京都板橋区小茂根1丁目1-41
築年数・総戸数が近いマンション
-

- パークヒルズ氷川台
-
東京都練馬区早宮1丁目36-16
-
NO PHOTO
- 池袋ウエストハイツ
-
東京都豊島区千早2丁目28番13号
-

- ライオンズマンション氷川台
-
東京都練馬区氷川台4丁目40-17
-
- キャニオンマンション千早町
-
東京都豊島区千早4丁目18-5
-
NO PHOTO
- 桜台テラスハウス
-
東京都練馬区桜台3丁目40-1
-
- メゾンドール氷川台
-
東京都練馬区羽沢3丁目8-5
-
NO PHOTO
- ルジェンテ・リベル氷川台
-
東京都練馬区氷川台3丁目41-16
-
NO PHOTO
- ルーブル氷川台
-
東京都練馬区氷川台4丁目43-18
-

- 氷川台パークホームズ
-
東京都練馬区氷川台4丁目54-21
-

- コスモ城北中央公園
-
東京都練馬区氷川台2丁目8-12
- 同じエリア・同じ沿線のマンション一覧から探す
- 総合ご案内窓口 賃貸専用ダイヤル
-
0120-222-251
受付時間:10:00AM~6:30PM
賃料査定のご相談
定休日:水曜日・年末年始


